公開日:2022年6月26日
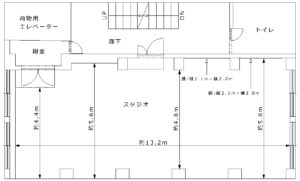
時々海風が吹くスタジオの広さは約44畳。
寸法は約13.2m×約4.8mと横に広がった空間です。

初利用や内覧など初めての方がスタジオにいらっしゃると「思った以上に広い…!」とよく言われます。

痕が残らないビニールテープなどを活用すれば
本番の舞台を想定した広さに場ミリをして舞台やダンスの練習ができたり…
スタート地点とゴール地点を作ってお子さんのかけっこの練習ができたり…
広い空間を幅広く活用できます!是非お試しください!
江東区のお店紹介 公式サイト
時々海風が吹くスタジオ
公開日:2022年6月26日
時々海風が吹くスタジオの広さは約44畳。
寸法は約13.2m×約4.8mと横に広がった空間です。

初利用や内覧など初めての方がスタジオにいらっしゃると「思った以上に広い…!」とよく言われます。

痕が残らないビニールテープなどを活用すれば
本番の舞台を想定した広さに場ミリをして舞台やダンスの練習ができたり…
スタート地点とゴール地点を作ってお子さんのかけっこの練習ができたり…
広い空間を幅広く活用できます!是非お試しください!
shopping_cart洋菓子・パン
shopping_cartジュース